Detalles del inmueble
Datos generales
Descripción
Descubre este exclusivo piso nuevo ubicado en la demandada zona de Corazón de Jesús, una de las mejores áreas para disfrutar de comodidad, tranquilidad y todos los servicios al alcance de la mano.
🏡 Características principales
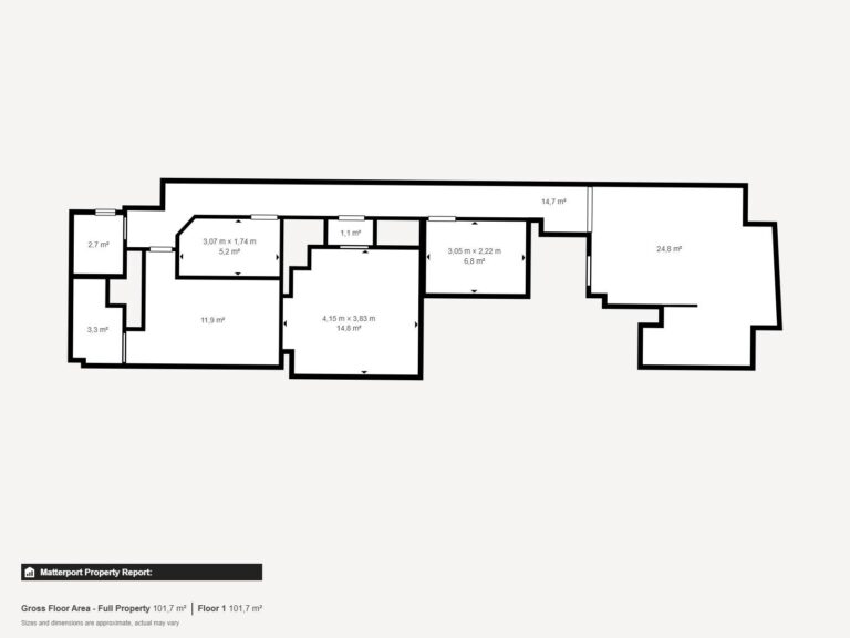
115 m² construidos
3 habitaciones amplias
2 baños completos, uno de ellos en suite
Primera planta con ascensor
Dos patios privados, uno de ellos tipo terraza interior con pérgola, perfecto para disfrutar al aire libre
Mirador a la calle con grandes ventanales que aportan una luminosidad excepcional
Aire acondicionado por conductos con bomba de frío y calor
Vestíbulo privado en la entrada, que aporta privacidad y une el espacio con elegancia
Acabados modernos y de alta calidad
Solo un vecino por planta, lo que garantiza tranquilidad y privacidad
🌆 Entorno y ubicación
Situado en pleno Corazón de Jesús, una zona consolidada y cómoda para vivir, rodeada de supermercados, colegios, centros de salud, comercios, transporte público y todos los servicios necesarios para el día a día.
💡 Ideal para…
Quienes buscan un hogar moderno, funcional y tranquilo, con espacios exteriores privados y un diseño cuidado en cada detalle.
Viviendas así no aparecen todos los días. ¡Contáctanos antes de que se reserve!
En cumplimiento de las obligaciones de información previstas en la Ley 10/2025, de 28 de diciembre, de
servicios de atención a la clientela y transparencia, así como en la normativa sectorial vigente, se
hace constar que el precio indicado no incluye los gastos e impuestos inherentes a la adquisición, los
cuales se desglosan a continuación:
- Impuesto sobre Transmisiones Patrimoniales (ITP): Se aplicará el tipo impositivo vigente en
la Comunidad Valenciana (generalmente el 10%, sin perjuicio de tipos reducidos del 3%, 4%, 6%
o 8% aplicables según las circunstancias personales del comprador o las características del
inmueble. El impuesto se devenga sobre el Valor de Referencia de Catastro o el precio de venta,
aquel que resulte superior.
- Gastos de Notaría: Los honorarios notariales se calcularán conforme al arancel oficial regulado
en el Anexo I, del Real Decreto 1426/1989, de 17 de noviembre, por el que se aprueba el
arancel Notarial.
- Gastos de Registro: La inscripción en el Registro de la Propiedad se facturará según el arancel
oficial establecido en el ANEXO I, del Real Decreto 1427/1989, de 17 de noviembre, por el que
se aprueba el arancel Notarial.
- En caso de que se utilice financiación bancaria para la compra del inmueble, puede incurrir en
gastos adicionales. Por favor, consulte con su entidad financiera.
Para una información exhaustiva sobre el funcionamiento, tipos impositivos y bonificaciones del ITP en la
Comunidad Valenciana, puede consultar el portal oficial de la Agencia Tributaria autonómica en el
siguiente enlace: https://atv.gva.es/es/itpajd
Detalle
Características
Calculadora de hipoteca
Resumen
Precio de compra: 0 €
Gastos iniciales: 0 €
Entrada (pago inicial): 0 €
Importe hipoteca: 0 €
Pago mensual hipoteca: 0 €
Seguro de vivienda: 0 €
Seguro hipotecario: 0 €
Gastos mensuales totales: 0 €
Pago Mensual












































