Detalles del inmueble
Datos generales
Descripción
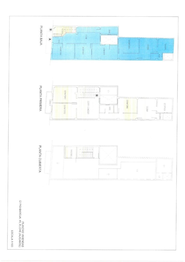
Se vende magnífica vivienda unifamiliar, con 184 m² construidos, ideal para quienes buscan amplitud, comodidad y espacios versátiles.
La propiedad se distribuye en dos plantas más terraza pisable:
🔹 Planta baja:
• Salón.
• Cocina independiente
• Baño completo.
• Patio interior.
• Tres habitaciones, dormitorio matrimonio y dos individuales.
🔹 Primera planta:
• Amplio salón, perfecto para reuniones familiares.
• Tres habitaciones de buen tamaño.
• Cocina independiente con galería.
• Baño completo.
🔹 Terraza pisable:
Un espacio amplio y diáfano que ofrece múltiples posibilidades. Aunque actualmente no cuenta con instalaciones, puede transformarse fácilmente en una zona chill out o barbacoa, ideal para disfrutar de las noches de verano en buena compañía.
✨ Una casa con carácter, que combina amplitud, funcionalidad y grandes posibilidades para adaptarla a tus necesidades.
Detalle
Características
Calculadora de hipoteca
Resumen
Precio de compra: 0 €
Gastos iniciales: 0 €
Entrada (pago inicial): 0 €
Importe hipoteca: 0 €
Pago mensual hipoteca: 0 €
Seguro de vivienda: 0 €
Seguro hipotecario: 0 €
Gastos mensuales totales: 0 €
Pago Mensual















