Detalles del inmueble
Datos generales
Descripción
“A 55 metros del mar y por reformar… oportunidad para crear”
¿Te asustan las reformas?
Entonces este piso no es para ti.
¿Necesitas entrar a vivir mañana sin tocar nada?
Entonces es mejor que no sigas leyendo.
Pero si sabes ver lo que otros no ven…
y entiendes que ahí es donde están las verdaderas oportunidades, continúa leyendo.
Porque esto no aparece dos veces.
A tan solo 55 metros reales de la playa, con acceso directo a la Playa de San Juan, hay viviendas que se compran por lo que son…
y otras, como esta, por lo que pueden llegar a ser.
Imagina abrir las ventanas y notar la brisa del Mediterráneo cada mañana.
Salir a tu terraza con un café, sin ruido, sin prisas… solo luz, aire y el sonido del mar de fondo.
Y sobre todo, saber que estás invirtiendo en una de las ubicaciones más sólidas, demandadas y con mayor proyección de Alicante.
Este es el punto de partida:
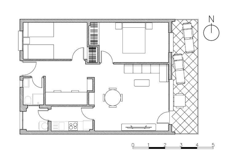
Salón con salida directa a terraza, también accesible desde el dormitorio principal.
Orientación Este, vivienda totalmente exterior, dos dormitorios… y algo que hoy marca la diferencia: parking y garaje comunitario, trastero exclusivo y urbanización con jardín.
Pero aquí viene lo importante: su potencial.
Porque este piso no está pensado para quien busca algo terminado.
Está pensado para quien quiere algo mejor que lo que ya existe en el mercado.
Redistribuir. Abrir espacios. Revalorizar.
Y hacerlo, además, con ventaja:
El edificio está siendo completamente renovado (fachadas, accesos, cubiertas…), por lo que en muy poco tiempo tendrás una finca actualizada, lista para muchos años.
Y la vivienda, gracias a su estructura con pilares metálicos, permite una redistribución mucho más libre, más limpia y más ambiciosa.
Aquí no estás comprando un piso.
Estás comprando una oportunidad clara de crear valor.
Y sí, necesita reforma. Por eso no es para todo el mundo.
Pero quien lo entiende… lo ve claro.
Y quien lo ve claro… no tarda en decidir.
Porque este tipo de propiedades no compiten con otras. Compiten con el tiempo.
Y aquí ya hay interés real.
No es un piso más.
Es el tipo de decisión que, cuando la tomas a tiempo… marca la diferencia.
Antes de visitarla puedes explorar el tour virtual 360º, planos, vídeo y reportaje fotográfico completo, incluidos en el anuncio.
Si aún te queda alguna duda, llámanos y la resolvemos.
¿Te invitamos a un café y lo vemos juntos?
**************************************************************************
NOTA LEGAL:
El precio indicado no incluye los gastos e impuestos inherentes a la adquisición, los cuales se
desglosan a continuación:
- Impuesto sobre Transmisiones Patrimoniales (ITP): Se aplicará el tipo impositivo vigente en la Comunidad Valenciana (generalmente el 10%), sin perjuicio de tipos reducidos del 8%, 6%, 4% y 3% según las circunstancias personales del comprador o las del inmueble). El impuesto se devenga sobre el Valor de Referencia Catastral o el precio de venta, el que resulte superior.
- Gastos de Notaría: Los honorarios se calcularán conforme al arancel oficial regulado en el Anexo/, del R.D. 1426/1989.
- Gastos de Registro: La inscripción registral se facturará según el arancel oficial establecido en el ANEXO/, del R.D. 1427/1989.
- Gastos de Gestión (Gestoría): Los honorarios por la tramitación administrativa, liquidación de impuestos e inscripción registral ascienden a entre 300/400€ (IVA incluido).
- Honorarios Agencia: Gratuito para el comprador. Pagaderos por el propietario.
* Para una información exhaustiva sobre tipos impositivos y bonificaciones del ITP, puede consultar el portal oficial de la Agencia Tributaria Valenciana: https://atv.gva.es/es/itpajd
** En el precio no se incluye, mobiliario, enseres, decoración, equipos de iluminación, así como vehículos de cualquier tipo o elementos deportivos.
Detalle
Características
Calculadora de hipoteca
Resumen
Precio de compra: 0 €
Gastos iniciales: 0 €
Entrada (pago inicial): 0 €
Importe hipoteca: 0 €
Pago mensual hipoteca: 0 €
Seguro de vivienda: 0 €
Seguro hipotecario: 0 €
Gastos mensuales totales: 0 €
Pago Mensual



























