LOCAL CON ACUERDO DE CAMBIO DE USO Y EXTFRACCION DE HUMOS
Datos generales
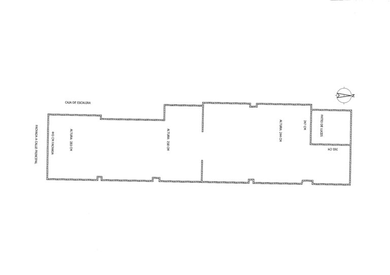
Descripción
Local destinado a cambio de uso, por acuerdo comunitario además de acuerdo para la instalación de extracción de humos.
Local situado cerca de Mercadona de Pedro Juan Perpiñan. Diafano en la actualidad.
Acuerdo comunitario autorizando el cambio de uso y colocación de extracción de humos. Pendiente por tanto de realizar proyecto para el cambio de uso y la instalación de extracción de humos.
Además se informa que están pendiente de reparación de pilares y partes de fachada. Todos estos temas a cargo del futuro comprador.
Solicita visita para ver las posibilidades del local.
Detalle
Características
Calculadora de hipoteca
Resumen
Precio de compra: 0 €
Gastos iniciales: 0 €
Entrada (pago inicial): 0 €
Importe hipoteca: 0 €
Pago mensual hipoteca: 0 €
Seguro de vivienda: 0 €
Seguro hipotecario: 0 €
Gastos mensuales totales: 0 €
Pago Mensual



















