Detalles del inmueble
Datos generales
Descripción
CARTAGENA-ZONA PASEO ALFONSO XIII ¿Buscas un espacio grande y bien ubicado para invertir o desarrollar tu propio negocio? Este local lo tiene todo.
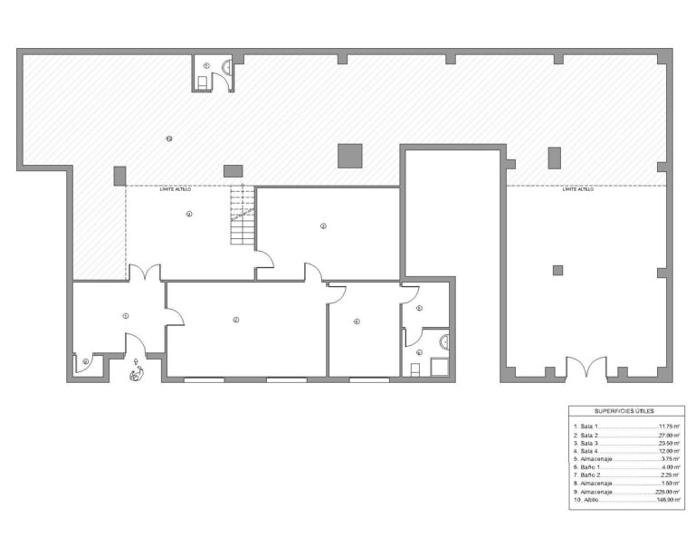
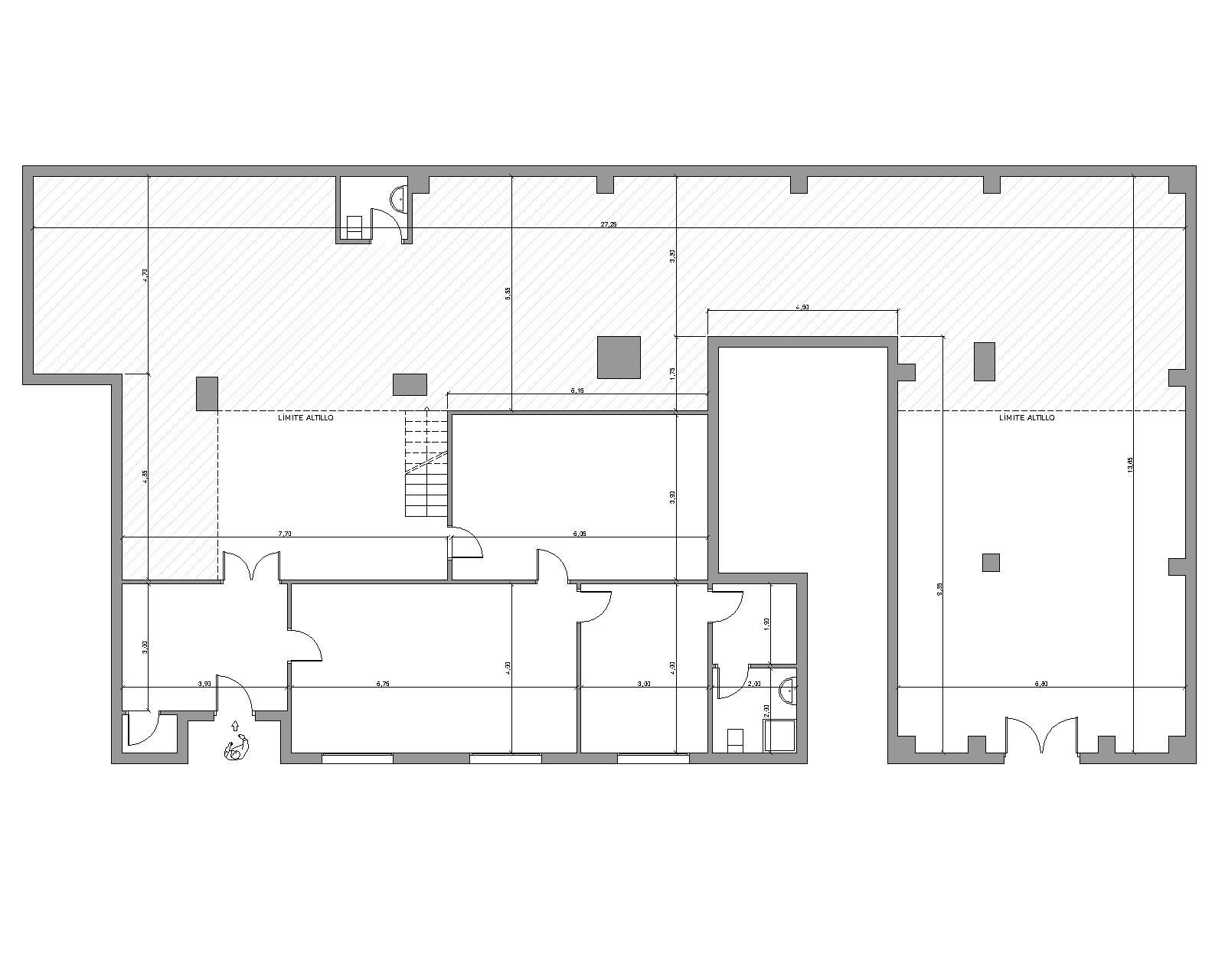
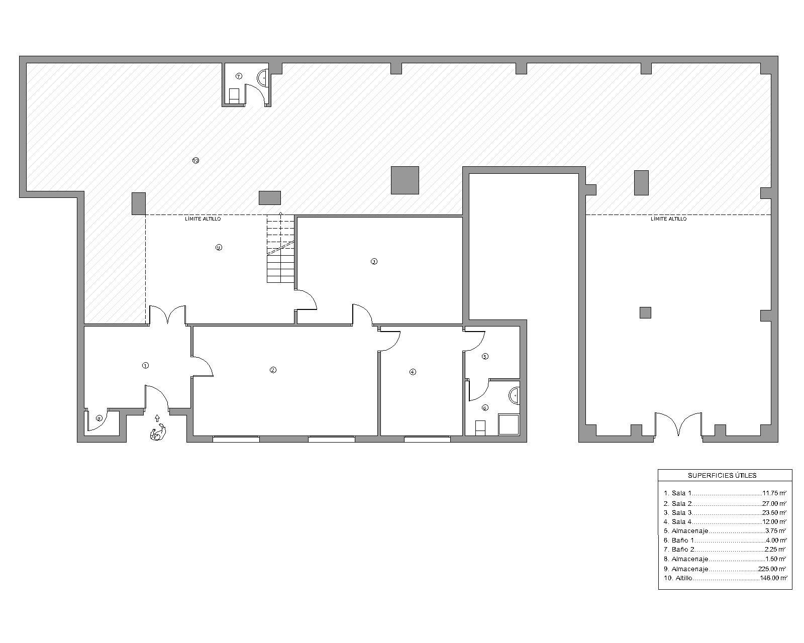
368 m² construidos, techos altos, zona diáfana, despachos, 2 baños, altillo y zona de almacén. Para reformar y adaptar completamente a tus necesidades. Ideal para montar un centro de trasteros urbanos, un modelo de negocio cada vez más demandado por:
• Particulares sin espacio en casa
• Profesionales y autónomos
• Tiendas online y pequeños distribuidores
• Guardamuebles
• Mini almacenes por metro cuadrado
Pero también es perfecto para:
Clínica, academia, coworking, gimnasio, almacén, oficinas, agencia o cualquier actividad que necesite espacio y buena ubicación.
Zona muy bien comunicada, céntrica y con todos los servicios: universidades, colegios, hospitales, supermercados y transporte público.
Inversión segura por ubicación y metros. Visítalo y valora todas las posibilidades.
Llámanos. Te ayudamos a analizar el proyecto que mejor se adapta a este local.
Por expreso deseo del propietario gestionamos este inmueble con carácter de EXCLUSIVA. Con ello garantizamos, a todas las partes, un servicio de mayor calidad y sin interferencias de terceros. Rogamos no molesten al propietario del inmueble -ni a posibles ocupantes, inquilinos, o al vecindario- , sino que se dirijan directamente a nosotros para cualquier cuestión relacionada con el mismo. Si pertenece a una agencia inmobiliaria y tiene un cliente interesado en él, póngase en contacto con nosotros, estaremos encantados de colaborar. Los precios y condiciones presentadas no son vinculantes y pueden estar sujetos a cambios.
* Gastos asociados a la compra no incluidos en el precio de venta para inmuebles en segunda transmisión:
Impuesto Transmisiones Patrimoniales: Se aplicará el tipo impositivo vigente en la Comunidad Autónoma según las circunstancias personales del comprador. El impuesto se devenga sobre el Valor de Referencia de Catastro o el precio de venta, aquel que resulte superior. Con bonificación: 3% - Sin bonificación: 7,75%
Gastos de Notaría: Los honorarios notariales se calcularán conforme al arancel oficial regulado en el Anexo I, del Real Decreto 1426/1989, de 17 de noviembre, por el que se aprueba el arancel Notarial.
Gastos de Registro: La inscripción en el Registro de la Propiedad se facturará según el arancel oficial establecido en el ANEXO I, del Real Decreto 1427/1989, de 17 de noviembre, por el que se aprueba el arancel Registral
Honorarios de agencia: 3% +IVA sobre precio de compraventa, con un mínimo de 3.000 € + IVA (No incluidos en el precio de venta).
* Para primera transmisión de inmuebles (obra nueva), será de aplicación, en vez del ITP, el IVA al tipo legal aplicable y el Impuesto de Actos Jurídicos Documentados.
Detalle
Características
Calculadora de hipoteca
Resumen
Precio de compra: 0 €
Gastos iniciales: 0 €
Entrada (pago inicial): 0 €
Importe hipoteca: 0 €
Pago mensual hipoteca: 0 €
Seguro de vivienda: 0 €
Seguro hipotecario: 0 €
Gastos mensuales totales: 0 €
Pago Mensual



























