Detalles del inmueble
Datos generales
Descripción
Villa de lujo con vistas al mar en exclusiva urbanización privada
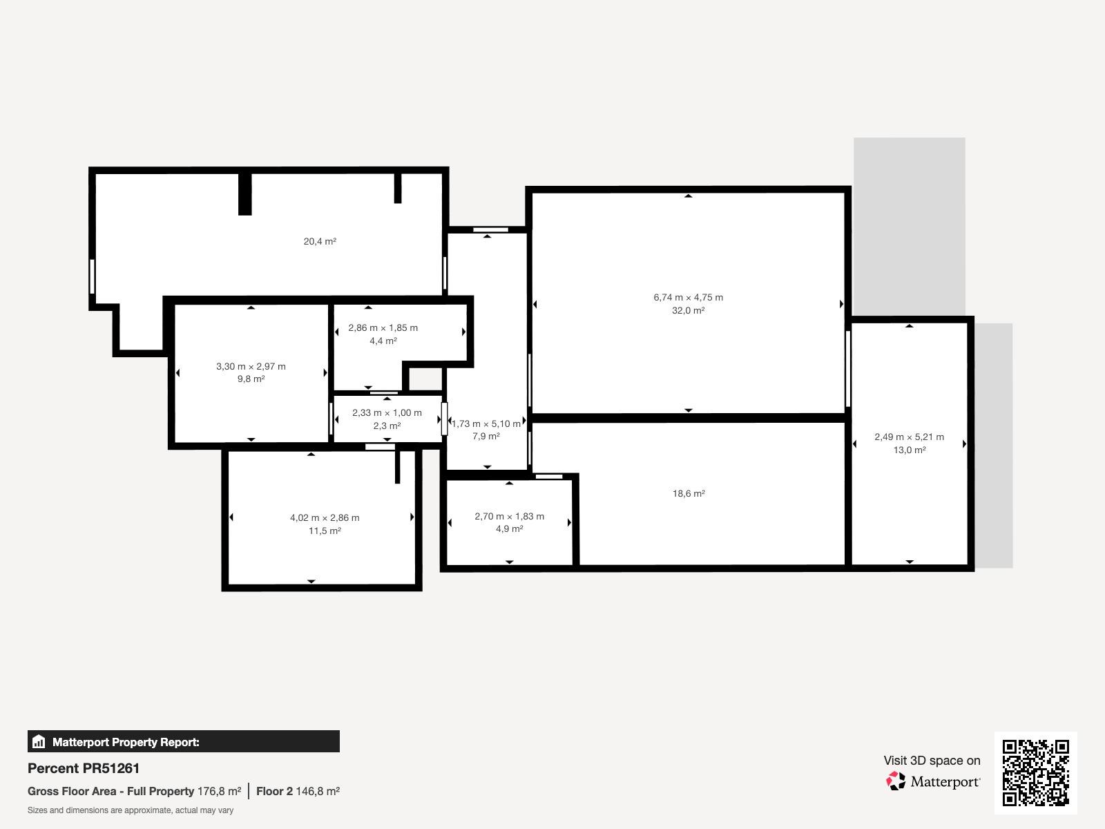
Esta espectacular villa de 180 m² construidos se encuentra en una tranquila y exclusiva urbanización cerrada, ideal para quienes buscan privacidad, seguridad y un entorno privilegiado cerca del mar.
Características principales:
• Amplio salón con terraza acristalada y vistas panorámicas al mar, perfecto para relajarse en un entorno luminoso y acogedor.
• Cocina independiente con zona de desayuno y acceso directo a la piscina: funcional y pensada para disfrutar al máximo cada momento.
• 3 dormitorios dobles que ofrecen máxima comodidad y tranquilidad.
• 2 baños completos, con acabados de alta calidad.
• Climatización por aire acondicionado frío/calor en toda la vivienda.
Zona exterior ideal para disfrutar al aire libre:
• Cocina exterior con barbacoa y comedor cubierto.
• Piscina privada rodeada de jardín, además de acceso a piscina comunitaria.
• Aparcamiento privado para varios vehículos.
Planta baja versátil:
• Estancias adicionales utilizadas como trastero y gimnasio, con múltiples posibilidades de uso.
• Garaje doble con acceso directo a la vivienda.
Ubicación inmejorable:
Muy cerca de colegio bilingüe, supermercados, restaurantes, farmacias, entidades bancarias y todos los servicios esenciales.
Una villa perfecta para vivir todo el año o disfrutarla como residencia vacacional.
Diseño, confort y vistas al mar en un entorno único. ¡Solicita tu visita!
Detalle
Características
Calculadora de hipoteca
Resumen
Precio de compra: 0 €
Gastos iniciales: 0 €
Entrada (pago inicial): 0 €
Importe hipoteca: 0 €
Pago mensual hipoteca: 0 €
Seguro de vivienda: 0 €
Seguro hipotecario: 0 €
Gastos mensuales totales: 0 €
Pago Mensual










































































