Detalles del inmueble
Datos generales
Descripción
Te presentamos esta magnífica vivienda unifamiliar tipo casa de pueblo en pleno centro de Massanassa. Construida a principios del siglo XX, sufrió una reforma integral en el año 2000 con un diseño rústico y acogedor. A escasos 3 minutos del apeadero ferroviario, a 10 minutos de la capital y a menos de 10 km de la playa.
🏠 Distribución:
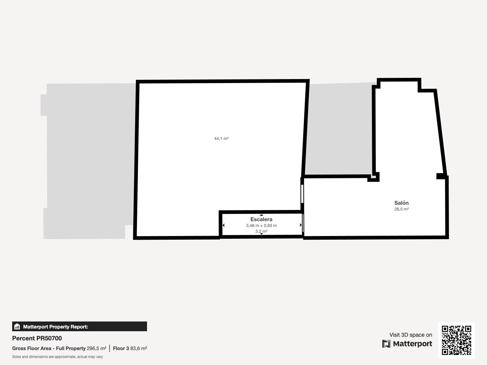
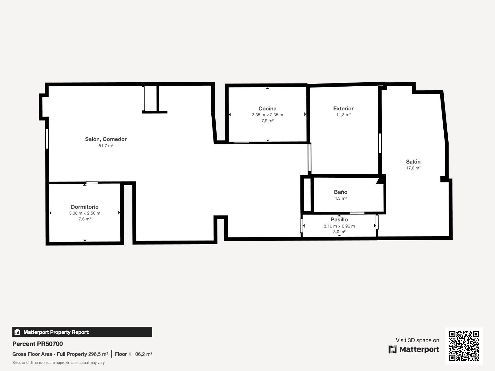
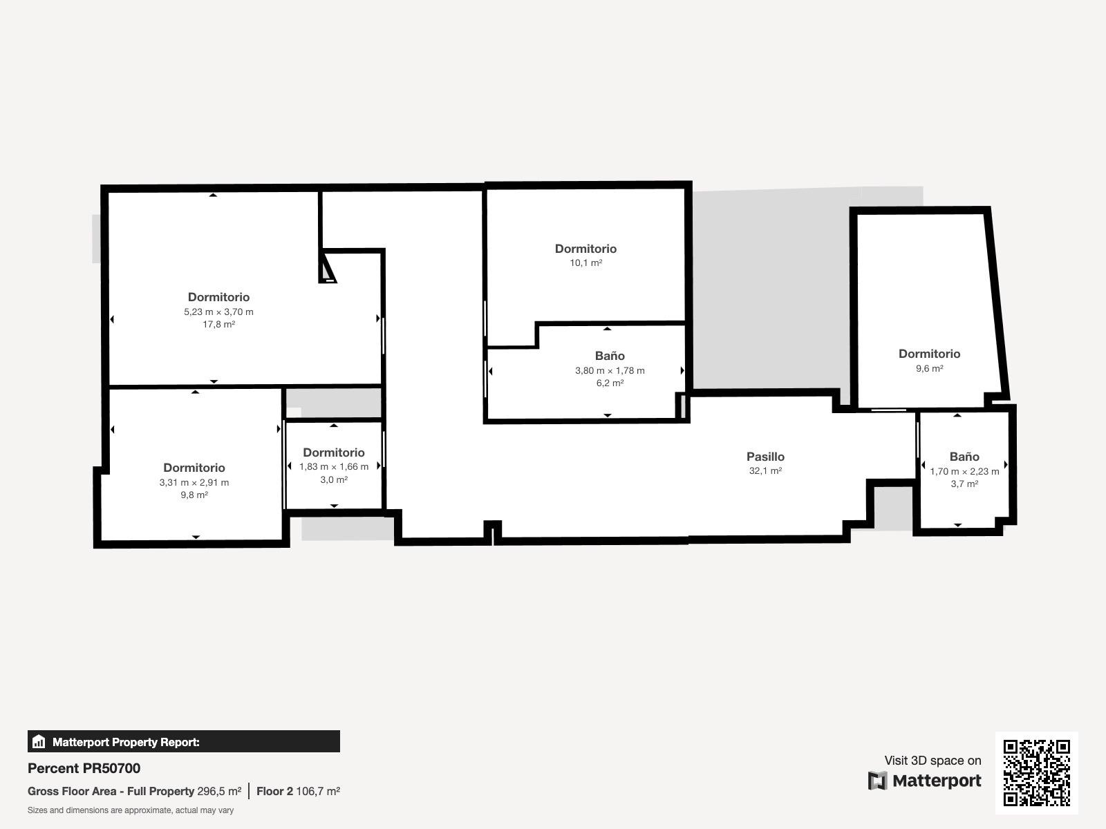
✅ La vivienda se compone de dos plantas, en planta baja nos encontramos un bonito recibidor que da acceso a un dormitorio simple, un espacioso salón-comedor, gran despensa, cocina, sala de estar con chimenea, baño completo y un precioso patio central que aporta luz a toda la planta. Desde el recibidor arranca la escalera a la planta primera compuesta por tres amplias habitaciones dobles, una habitación sencilla y dos baños completos. Por último, en planta cubierta nos encontramos una amplia estancia destinada a lavadero, tendedero y zona de planchado que da acceso a una gran terraza con magníficas vistas de la población.
🏡 Detalles y equipamiento:
✨La vivienda se encuentra en perfectas condiciones de uso y mantenimiento, como nueva, dotada de muy buenas calidades de estilo rústico que le confieren un ambiente muy acogedor. Cuenta con una cocina totalmente equipada con comunicación directa con el salón-comedor, el cual destaca por sus techos altos con entrevigados de madera y suelos de gres rústico. También destaca su bonito patio central y sus magníficas vistas desde la terraza de la planta cubierta. La vivienda consta de tres baños completos, uno dotado de bañera y los otros dos con plato de ducha. Las habitaciones son muy amplias constando todas ellas de armarios empotrados.
✨Splits de aire acondicionado frío-calor en todas las estancias.
✨Posibilidad de adquirir parte del mobiliario
🌿 Ubicación privilegiada:
En el mismo centro de la población, a 3 minutos andando de la estación de tren y próxima a supermercados, parques infantiles, zonas deportivas, restaurantes, colegios y zonas comerciales de grandes superficies como IKEA, Carrefour, Decathlon, Leroy Merlin, etc.
A 10 minutos de la capital valenciana y a menos de 10 km de la playa.
🚀 ¡No dejes pasar esta oportunidad!
Este hogar es ideal para quienes buscan calidad de vida en un entorno urbano tranquilo y con todos los servicios a su alcance.
✨ Contáctanos hoy mismo para más información y agenda tu visita. ¡Esta casa te va a enamorar!
ℹ️ Los muebles, gastos de compraventa y honorarios de agencia no están incluidos en el precio.
Detalle
Características
Calculadora de hipoteca
Resumen
Precio de compra: 0 €
Gastos iniciales: 0 €
Entrada (pago inicial): 0 €
Importe hipoteca: 0 €
Pago mensual hipoteca: 0 €
Seguro de vivienda: 0 €
Seguro hipotecario: 0 €
Gastos mensuales totales: 0 €
Pago Mensual

































































