Detalles del inmueble
Datos generales
Descripción
Presentamos una pieza arquitectónica única de 1888 en el corazón de Alberic. Una casa de pueblo con 751 m² construidos sobre una generosa parcela de 566 m², que conserva el encanto de las vigas vistas y suelos antiguos, ofreciendo un lienzo infinito para quienes buscan rehabilitar una propiedad con historia y carácter.
Detalles Clave de la Vivienda
- Superficie: 751 m² construidos / 566 m² de parcela.
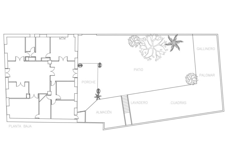
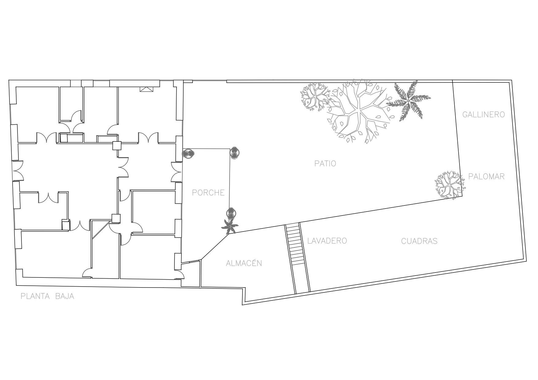
- Distribución: 6 habitaciones, 2 baños, 3 salones y cocina independiente.
- Exteriores: Gran patio central con árboles, zona de antiguo establo y lavadero.
- Estado: Para reformar (Tejado en buen estado, suministros de luz y agua de alta).
- Orientación: Noroeste en fachada y Sureste en el patio (Sol de mañana y mediodía, ideal para la vida exterior).
- Extras: Entrada para vehículos al patio y posibilidad de adquirir parcela anexa edificable de 1.500 m².
Recorrido:
- El acceso se realiza a través de unas imponentes portadas clásicas de pueblo que nos dan la bienvenida a un majestuoso salón-distribuidor. A la izquierda, encontramos una habitación, un baño completo, la cocina y un acogedor salón con chimenea original. A la derecha del distribuidor, se sitúan dos amplias habitaciones dobles. Continuando el eje central, accedemos a un segundo gran salón que conecta visualmente con la zona de noche (3 habitaciones, una de ellas en suite) y con el corazón de la casa: el patio.
- Al cruzar el umbral hacia el exterior, nos recibe un amplio porche con potencial para ser techado. El gran patio central, salpicado de árboles, es el eje sobre el que gira la propiedad. En este espacio encontramos la entrada para vehículos, una práctica despensa, el antiguo lavadero y la zona de establos. Al fondo, un auténtico gallinero y palomar nos recuerdan el origen agrícola de la finca, justo antes de dar paso al terreno anexo de 1.500 m².
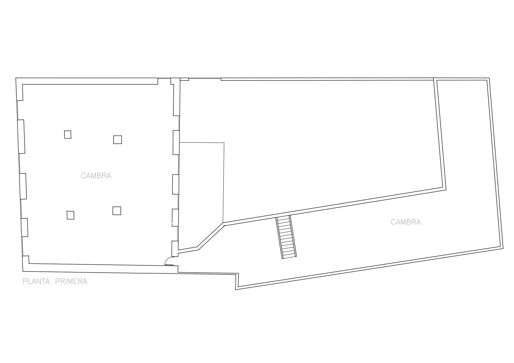
- A través de una escalera desde el patio, subimos a la planta superior. Aquí se divide en dos mundos: la zona diáfana sobre los antiguos establos y la impresionante Zona de la Seda. Esta última, situada sobre la vivienda principal, destaca por sus techos de gran altura, siendo el lugar donde históricamente se cultivaban los gusanos de seda; un espacio con un volumen y una luz espectaculares para proyectar estancias diáfanas de diseño.
Ubicada estratégicamente justo detrás del Ayuntamiento, la vivienda se encuentra en la zona más tranquila del casco histórico.
- Transporte: A tan solo 650 metros de la estación de Metro (Línea 1), conectando directamente con Valencia capital.
El propietario ha otorgado exclusiva para la comercialización lo que le garantiza información completa, veraz, servicio de calidad, trato fácil y un proceso sin interferencias de terceros.Se ruega no molestar al propietario,ocupantes,vecinos o conserjes.Las agencias inmobiliarias pueden contactar para colaborar y los compradores pueden delegar la búsqueda en Keller Williams Cpi gestión que con más de 25 años en el mercado inmobiliario,cuenta con seguro de responsabilidad profesional y caución.Registrada como Agencia Inmobiliaria 1.153 en el Registro de la C.V,Agente de la Propiedad Inmobiliaria Colegiada 1.501 y Agencia Inmobiliaria Colaboradora de la Generalitat Valenciana HDAIC_8_2022_V.Confíe sólo en profesionales cualificados,registrados,con garantías y con domicilio abierto al público para ejercer sus derechos.La oferta está sujeta a cambios de precio o retirada del mercado.Salvo que en el anuncio se indique expresamente lo contrario,el precio no incluye:honorarios de agencia,impuestos,notaría,gestoría y registro.Corresponde al vendedor el derecho a elegir notario.Este anuncio no es vinculante y puede contener errores.Se muestra a título informativo,no contractual.Para verificar detalles como medidas,circunstancias físicas,jurídicas o cualquier otra info requerida por normativas estatales y autonómicas,contacte con el agente inmobiliario anunciante.
Detalle
Características
Calculadora de hipoteca
Resumen
Precio de compra: 0 €
Gastos iniciales: 0 €
Entrada (pago inicial): 0 €
Importe hipoteca: 0 €
Pago mensual hipoteca: 0 €
Seguro de vivienda: 0 €
Seguro hipotecario: 0 €
Gastos mensuales totales: 0 €
Pago Mensual





























































