Detalles del inmueble
Datos generales
Descripción
Presentamos este magnífico adosado esquinero en la localidad de Massamagrell, construido en el año 2006 una oportunidad excepcional para quienes buscan comodidad y estilo.
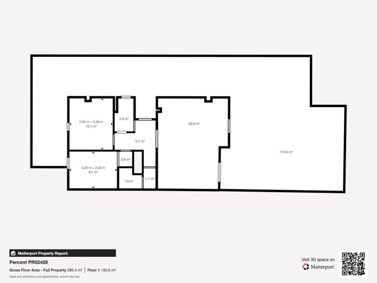
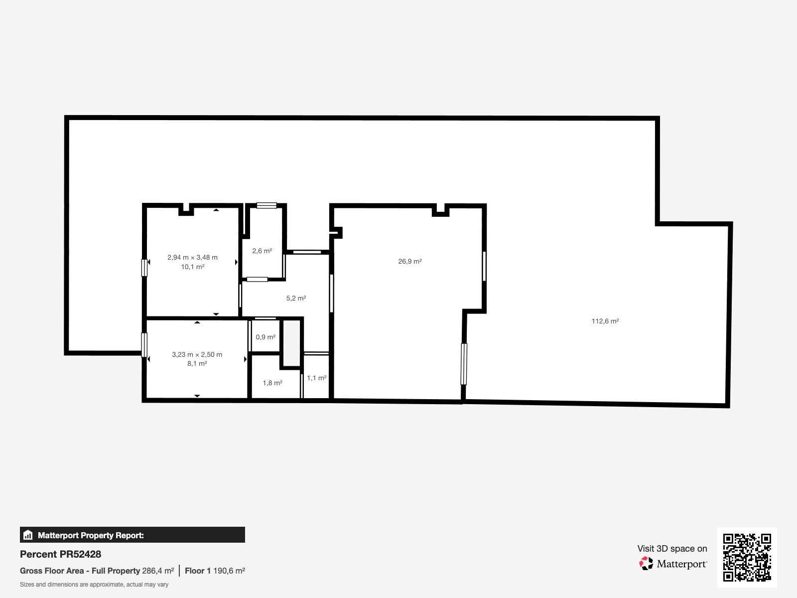
Con una superficie construida de 150 m² distribuidos en dos plantas más buhardilla, esta propiedad cuenta con un total de cuatro habitaciones; tres dobles que ofrecen amplio espacio y luz natural, además de una habitación sencilla en planta , ideal para familiares o visitas aportando privacidad. Los tres baños ( uno en suite con bañera) están perfectamente equipados para satisfacer las necesidades familiares.
La distribución incluye un acogedor salón-comedor( donde se puede salir a un gran espacio donde poder poner una piscina , o servir con garaje para dos o tres coches .) junto a la cocina totalmente equipada, creando así el lugar perfecto para disfrutar momentos inolvidables con seres queridos.
La vivienda destaca por su estado impecable: lista para entrar a vivir sin necesidad de reforma alguna. Además, al ser esquinera ofrece vistas despejadas desde sus terrazas superiores donde podrá relajarse mientras disfruta del entorno tranquilo que le rodea. Incorporando placas solares que proporcionan eficiencia energética adicional,
este hogar no solo representa calidad sino también sostenibilidad.
No pierda la ocasión de visitar este atractivo inmueble ubicado estratégicamente cerca del centro urbano y servicios esenciales.
En el precio no esta incluido el mobiliario que aparece en las fotografias , los gastos de notaria , registro y honorarios de agencia no estan inlcuidos en el precio .
LLamanos para visitarla , te encantara.
Detalle
Características
Calculadora de hipoteca
Resumen
Precio de compra: 0 €
Gastos iniciales: 0 €
Entrada (pago inicial): 0 €
Importe hipoteca: 0 €
Pago mensual hipoteca: 0 €
Seguro de vivienda: 0 €
Seguro hipotecario: 0 €
Gastos mensuales totales: 0 €
Pago Mensual

































































